Luftbild

Masterplan (me di um Architekten)

Masterplan Perspektive (me di um Architekten)

Internetauftritt

Bebauungsplanentwurf

Werkblatt

zurück zur Übersicht

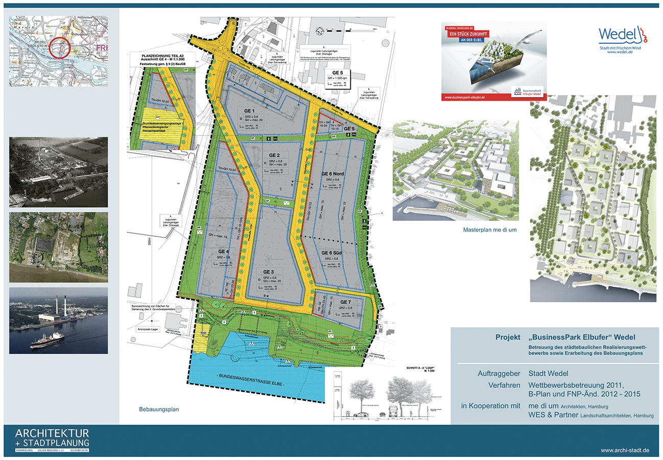
Stadt Wedel, B-Plan Nr. 88 "Businesspark Elbufer Wedel"

Betreuung des städtebaulichen Realisierungswettbewerbs sowie Erarbeitung des Bebauungsplans und der FNP-Änderung

 

Auftraggeber
Stadt Wedel

Verfahren
Wettbewerbsbetreuung 2011,
B-Plan und FNP-Änderung 2012 bis 2015

Kooperation mit
me di um Architekten, Hamburg
WES & Partner Landschaftsarchitekten, Hamburg