Auftraggeberin
Gemeinde Neu Wulmstorf
in Kooperation mit
Siemer Kramer Architekten Ingenieure Partnerschaft mbh
PGL Thieme-Hack Landschaftsarchitekten PartGmbB
LAIRM CONSULT GmbH
Geltungsbereich
rd. 1 ha
Verfahren
seit 2019
Luftbild mit Geltungsbereich
Vorabzug Entwicklungsvorhaben (Siemer Kramer Architekten Ingenieure Partnerschaft mbh)
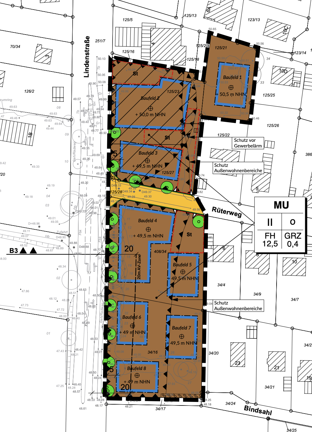
Bebauungsplan (Entwurf)
Planzeichnung (Entwurf)
Werkblatt
Auftraggeberin
Gemeinde Neu Wulmstorf
in Kooperation mit
Siemer Kramer Architekten Ingenieure Partnerschaft mbh
PGL Thieme-Hack Landschaftsarchitekten PartGmbB
LAIRM CONSULT GmbH
Geltungsbereich
rd. 1 ha
Verfahren
seit 2019