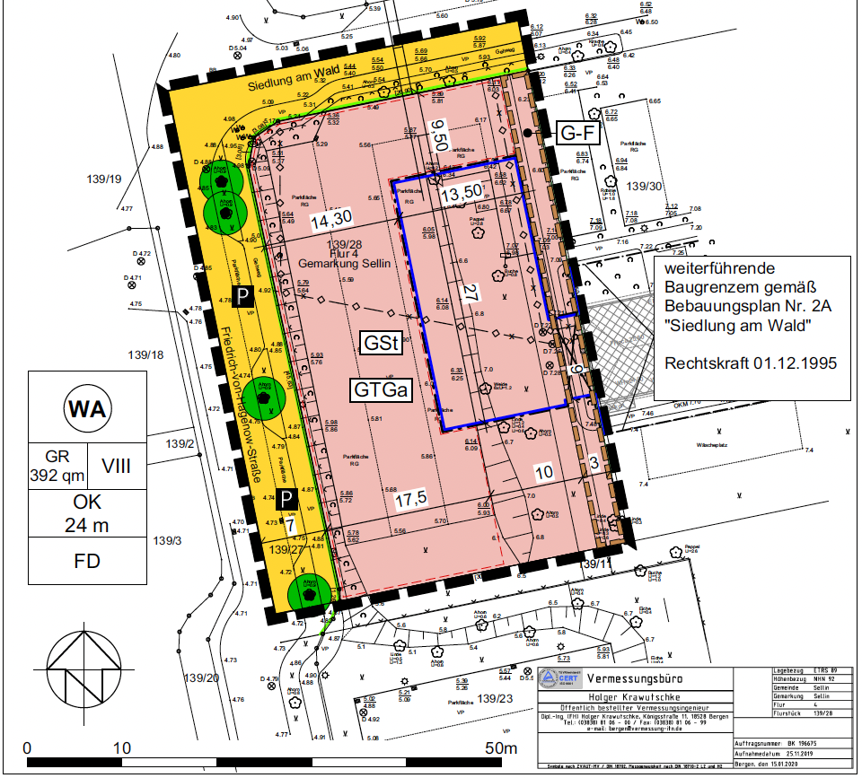
Lageplan

Luftbild mit Darstellung der Grenze des räumlichen Geltungsbereiches

Bereich der 7. Änderung i.V.m. dem Bebauungsplan Nr. 2A

Planzeichnung

Schematische Darstellung der Höhenentwicklung durch Bezugspunktbestimmung

Darstellung der Höhenentwicklung in Bezug zur umliegend Landschaft und möglicher Sichtbeziehungen

zurück zur Übersicht

Gemeinde Ostseebad Sellin, Bebauungsplan Nr. 2A, 7. Änderung “Siedlung am Wald”

Auftraggeber
Wohnungsbau- und Verwaltungsgesellschaft Sellin mbH

Verfahren
2021 - 2022

Planerfordernis und Planungsziel

Das Ostseebad Sellin verzeichnete in den letzten Jahren eine starke Bautätigkeit. Angesichts der erfolgreichen Entwicklung des Ostseebades ist auch für die Zukunft mit einem anhaltenden Bedarf an Wohnraum zu rechnen. Die Einwohnerzahlen im Ostseebad Sellin stiegen von Ende 2010 (2.412) bis Ende 2020 (2.653) um rund 10%. Die ungenügende Wohnraumversorgung wird sich mittelfristig negativ auch auf die wirtschaftliche Entwicklung des Ostseebads auswirken. Mit der zunehmenden Knappheit an qualifizierten Arbeitskräften, der nur durch regionale bzw. überregionale Anwerbungen zu begegnen sein wird, erhalten die weichen Standortfaktoren der Gemeinde Ostseebad Sellin eine immer stärkere Bedeutung. Hierzu gehören an erster Stelle die Verfügbarkeit an Wohnraum, aber auch deren Zuordnung zu den Einrichtungen der Infrastruktur (soziale Einrichtungen, Nahversorgung, Sportanlagen), die im Grundzentrum Ostseebad Sellin gut ausgebaut sind.

Die Gemeinde plant daher die städtebauliche Nachverdichtung und Erweiterung des Wohnungsangebotes in der bereits bestehenden „Siedlung am Wald“. Die positive Einwohnerentwicklung Sellins und die verstärkte Nachfrage nach Mietwohnungen durch junge Leute sowie nach kleineren Wohnungen erfordern eine Anpassung des ursprünglichen Planungskonzeptes des ehemaligen Siedlungsgroßvorhabens „Siedlung Am Wald". Flächen dafür stehen im Zusammenhang mit den bereits für den Mietwohnungsbau bebauten Bereichen der „Siedlung am Wald" nur noch in begrenztem Umfang zur Verfügung.

Die Festsetzungen im Ursprungsplan ermöglichen keine städtebauliche Nachverdichtung und Erweiterung des Wohnungsangebotes im Sinne der neudefinierten Planungskonzeption. Daher werden im Zuge der 7. Änderung folgende Planungsinhalte verfolgt:

- Änderung der überbaubaren Grundstücksfläche, so dass die Gebäudeflucht im rechten Winkel zur „Ferdinand-von Hagenow-Straße“ bzw. Bundesstraße „B 196“ abknickt

- Aufstockung auf 8 Geschosse