Übersichtsplan

Luftbild der Stadt Parchim

Informelle Planung / Masterplan "Regimentsvorstadt"

10. Änderung des Flächennutzungsplanes

Bestands- und Konfliktplan (Büro BHF BENDFELDT HERRMANN FRANKE LandschaftsArchitekten GmbH, 06/2019)

Planzeichnung

Planzeichnung (nördlicher Teilbereich)

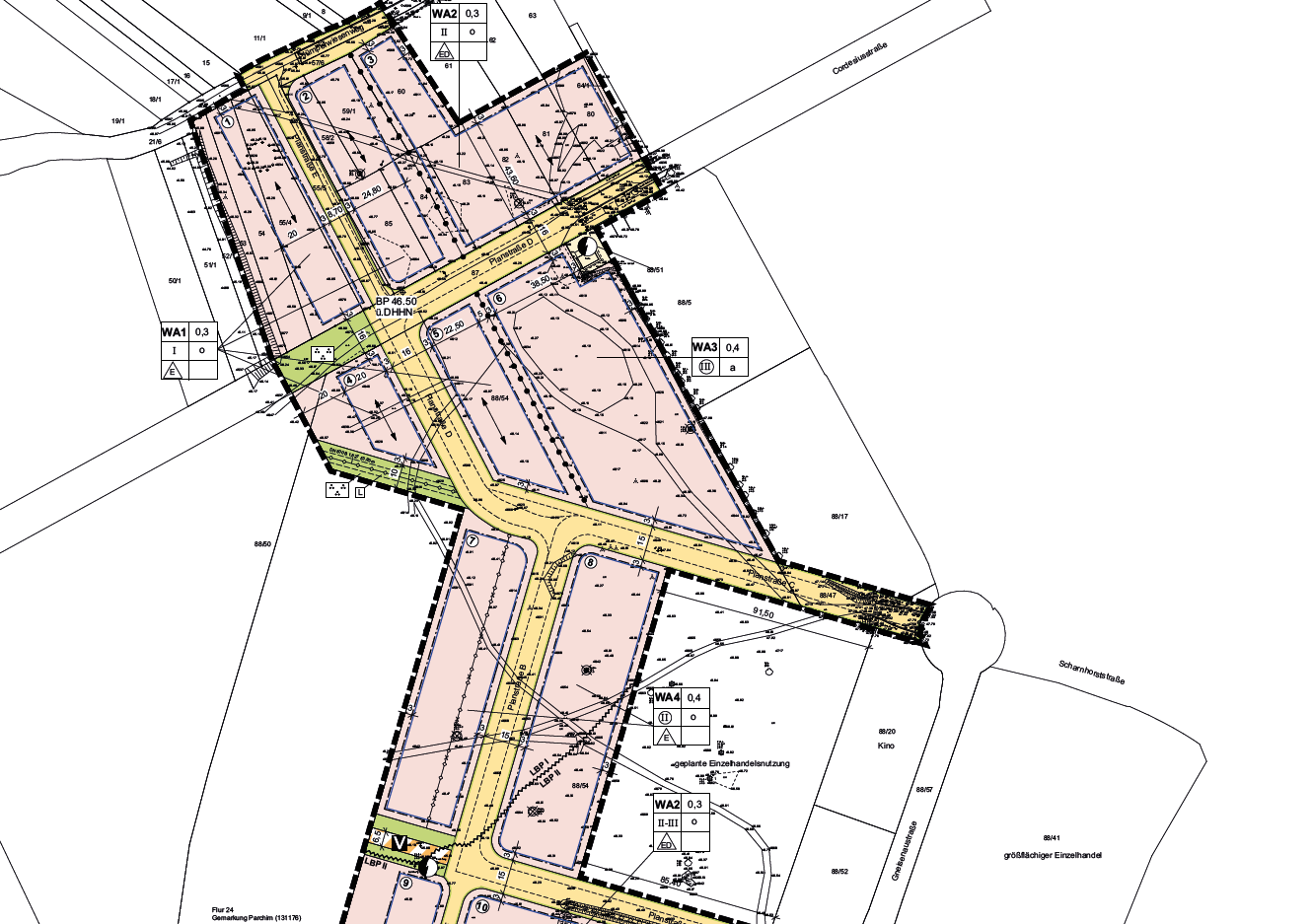
Planzeichnung (südlicher Teilbereich)

zurück zur Übersicht

Stadt Parchim, Bebauungsplan Nr. 50 "Regimentsvorstadt"

Auftraggeber
Stadt Parchim

Verfahren
2017 - 2019

Anlass und Ziel der Planung

Das Plangebiet wird innerhalb des Wohnbaulandentwicklungskonzeptes 2017 unter der Kennziffer 22 „Regimentsvorstadt/Ost“ in der Kategorie „Wohnbauland“ geführt und erfüllt in vollem Umfang die Maßgaben der Stadt Parchim für eine langfristige, gezielte und kontrollierte Entwicklung des Baulandangebotes in Parchim. Neben der besonderen Lagegunst im Übergangsbereich zwischen der historischen Altstadt Parchims, der bevölkerungsreichen Weststadt sowie der großflächigen Südstadt, zeichnet sie sich durch eine ansprechende Größe aus. Mit der Entwicklung der Fläche soll die räumliche wie auch funktionelle Verbindungsfunktion der Regimentsvorstadt gestärkt und das Stadtbild aufgewertet werden.

Das wesentliche Ziel des Bebauungsplans besteht darin, die planungsrechtlichen Voraussetzungen für die Nachnutzung der Stadtumbaufläche und ihre städtebauliche Neuordnung zu schaffen. Die Regimentsvorstadt soll als hochwertiger innerstädtischer Wohnstandort entwickelt und damit einer zukunftsfähigen Nachnutzung zugeführt werden. Im Einzelnen verfolgt die Planung die folgenden Ziele und Zwecke:

  • Wiedernutzbarmachung und städtebauliche Neuordnung der derzeitigen Freifläche,
  • Ausweisung eines allgemeinen Wohngebietes im Sinne des § 4 Baunutzungsverordnung (BauNVO) und Gemeinbedarfsflächen für die Errichtung einer Schule und Kindergartenstätte,
  • Bereitstellung von Flächen für den individuellen Eigenheimbau in Form von Einfamilien- und Doppelhäusern und
  • geordnete Erschließung des Gebietes.

 

 Werkblatt