Übersichtsplan

Planzeichnung zum vorhabensbezogenen B-Plan

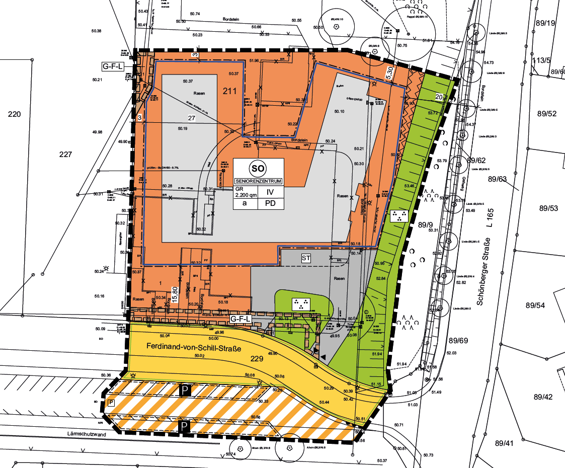
Vorhaben- und Erschließungsplan zum vorhabensbezogenen B-Plan

Werkblatt

zurück zur Übersicht

Stadt Lütjenburg, Vorhabenbezogener B-Plan Nr. 65 "Vorhaben Vitanas Lütjenburg"

Auftraggeber
Burkard Verwaltung GmbH

Verfahren
2017

Anlass und Ziel der Planung

Die Schill-Kaserne wurde 1962 eröffnet und Mitte 2013 endgültig geschlossen. Die Stadt Lütjenburg hat in den Jahren 2013/14 einen städtebaulichen Rahmenplan -Nachnutzung Schill-Kaserne- zwecks Vorbereitung der zivilen Nachnutzung der ehemaligen Kaserne erstellt und im Juni 2014 beschlossen. Der Vorhabenträger betreibt in der Stadt Lütjenburg im Kreis Plön ein Seniorenzentrum. Das Haus wurde 1972 errichtet und im Jahr 2000 teilsaniert. Nach Prüfung des Standortes Lütjenburg ist seitens des Betreibers ein Ersatzbau geplant, welcher sich innerhalb des ehemaligen Kasernengeländes befinden soll.

Das Planungsziel sieht vor, die planungsrechtliche Voraussetzung für den Bau eines Seniorenzentrums zu schaffen. 

 

Werkblatt