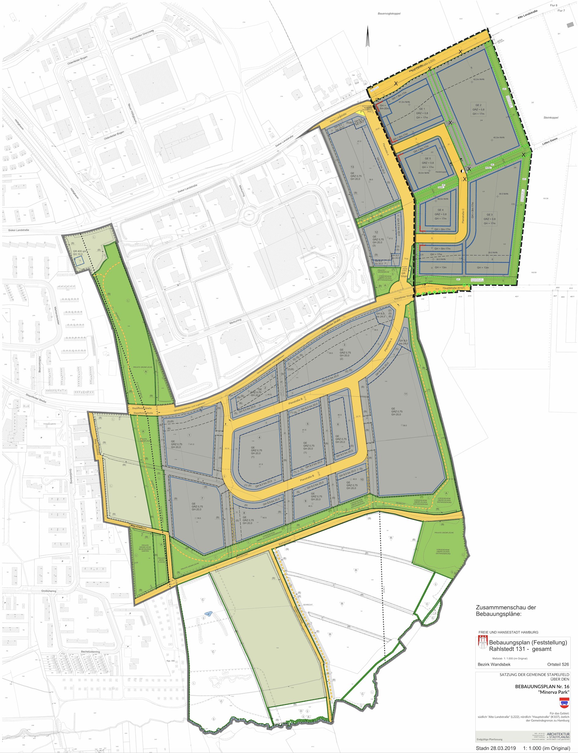
Freie und Hansestadt Hamburg, Bezirk Wandsbek
B-Plan Rahlstedt Nr. 131 „Victoria-Park“
Gemeinde Stapelfeld (Kreis Stormarn, Schleswig-Holstein)
B-Plan Nr. 16 „Minerva-Park“
inkl. 30. Änderung des Flächennutzungsplanes
Auftraggebende
Wirtschafts- und Aufbaugesellschaft Stormarn (WAS) mbH
Victoria Park Hamburg GmbH & Co. KG
in Kooperation mit
industrie planung, architekten und ingenieure gmbh, Hamburg
Landschaftsplanung Jacob, Norderstedt
wfw nord consult Ingenieurgesellschaft mbH, Hamburg
Dittloff + Paschburg Landschaftsarchitekten, Hamburg
Verfahren
2016 - 2019