Perspektive

Lageplan

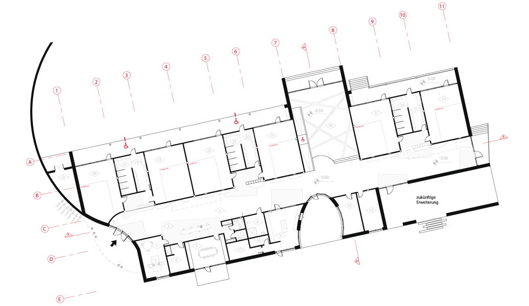
Grundriss

Schnitte

Ansichten

Ansichten

Innenperspektive

zurück zur Übersicht

Kindertagesstätte, Neustadt in Holstein

Auftraggeber
Stadt Neustadt in Holstein

2. Platz

Mitarbeiter: Dipl.-Ing. Jürgen Ruoff, Johannes Dörnen (Bachelor of Arts), Pedro Javier Bermudez Fernandez [CU]

Der Baukörper ist als Zwei-Bund konzipiert und hat seine größte Ausdehnung in Längsausrichtung. Das Gebäude öffnet sich nach Norden hin zum Mühlenteich mit großen Glasfassaden und ist zur Nimwegenstraße von „geschlossener Natur“, lediglich unterbrochen durch das Organoponik, welches auch als Auftakt für die „Hiking-Tour“ durch die Kinderlandschaft dient.